• +7 (4832) 51-02-40
  • et@et32.ru
  • РОССИЯ, 241031, г. Брянск, бульвар Щорса, 1, оф.301

Стойка КС-1-ШК

Стойка КС-1-ШК

(стойка) предназначена для установки в тоннелях метрополитена, на станциях с открытыми и закрытыми платформами. Устанавливаемое оборудование:

  • один шкаф с установочными размерами 740х700 мм;
  • один ящик соединительный: СЯ14, СЯ28, СЯ36, СЯ46 или СЯ58 производства НПО "Электронтехника".
Пример записи обозначения в документации и при заказе:
Стойка КС-1-ШК БРМТ.301421.037

 

Материал стойки – сталь
Цвет полимерного покрытия – "Антик мелкое серебро"
Климатическое исполнение – У1
Масса, не более:
стойки – 23,5 кг кронштейна – 4 кг
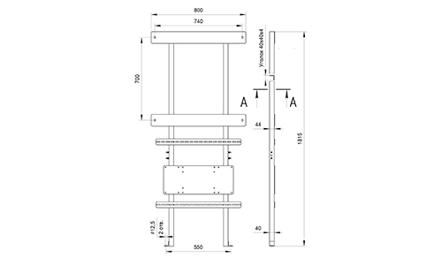
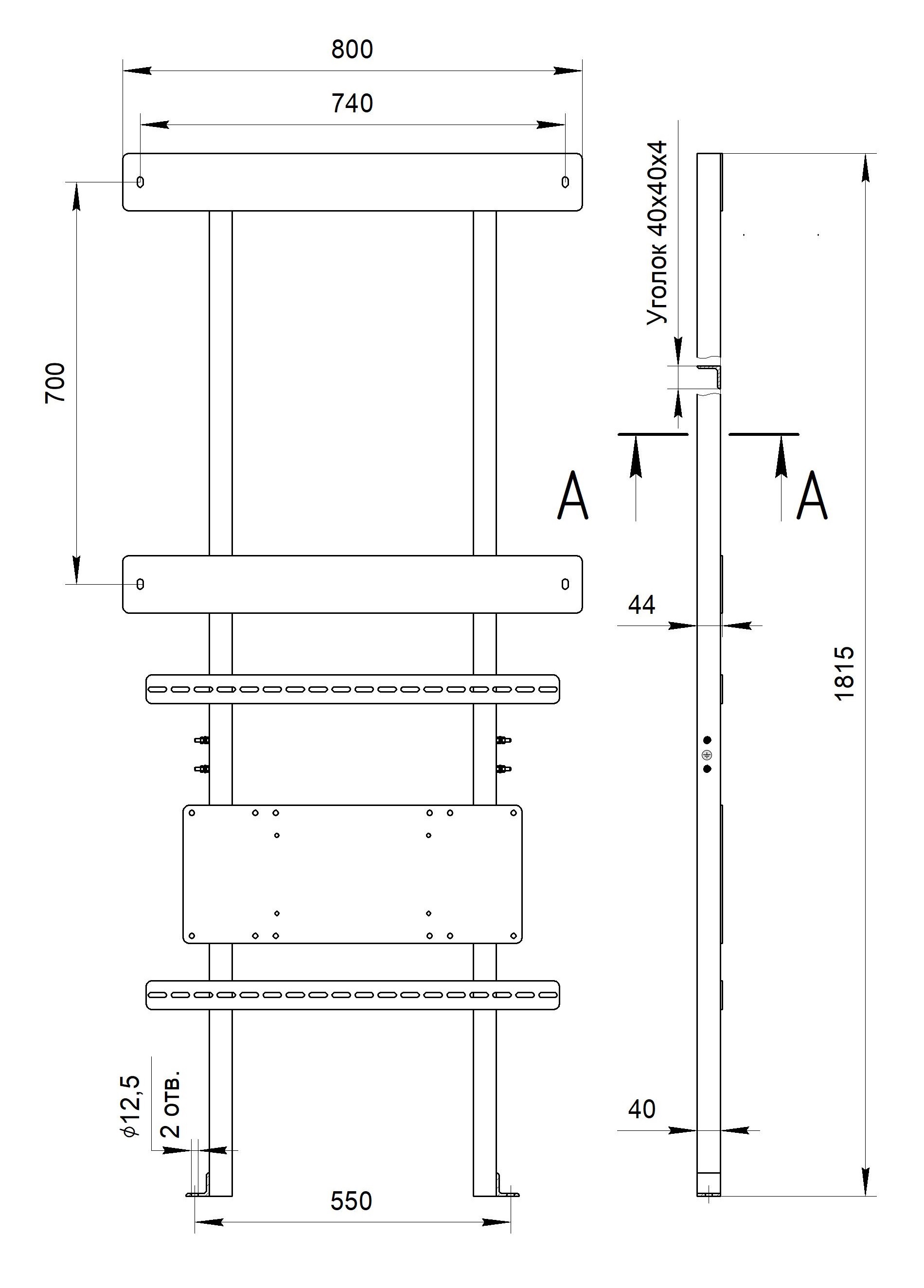
Габаритные размеры, не более:
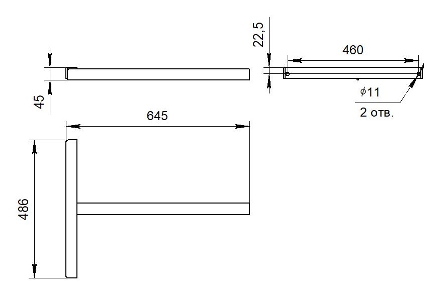
стойки – 800х1815х44 мм кронштейна – 486х45х645 мм

КОМПЛЕКТ ПОСТАВКИ

Наименование Кол.
Стойка КС-1-ШК 1 шт.
Кронштейн БРМТ.301318.099 1 шт.
Болт М10х40 2 шт.
Гайка М10 4 шт.
Шайба С.10 4 шт.
Стойка КС-1-ШК. Паспорт 1 экз.
Тара упаковочная 1 шт.
ОБЩИЙ ВИД, ГАБАРИТНЫЕ И УСТАНОВОЧНЫЕ РАЗМЕРЫ СТОЙКИ
ОБЩИЙ ВИД, ГАБАРИТНЫЕ И УСТАНОВОЧНЫЕ РАЗМЕРЫ КРОНШТЕЙНА БРМТ.301318.099